產品優勢
1、多功能:集風篩、比重選、篩選于一體;
2、凈度高:有效去除90%以上的秕籽、芽粒、蟲蛀粒、霉變粒、黑粉病粒等較輕雜質;
3、全激光數控工藝、噴砂噴塑表面處理;
4、操作便捷:可更換式比重臺面,便于日常清理維護;
5、一機多用:可同時加工多種粒徑的物料。




首先物料經提升設備輸送至散糧箱,在散糧箱的作用下,物料分散成均勻的瀑布面進入立式空氣篩,經風選輕雜質由除塵器輕雜出口排出,物料流入比重臺,根據物料和雜質的比重差異,比重較小的雜質分布在表層向低處流動由比重臺輕雜口排出,好料分布在底層向高處流動,從接料斗處排出。
1、多功能:集風篩、比重選、篩選于一體;
2、凈度高:有效去除90%以上的秕籽、芽粒、蟲蛀粒、霉變粒、黑粉病粒等較輕雜質;
3、全激光數控工藝、噴砂噴塑表面處理;
4、操作便捷:可更換式比重臺面,便于日常清理維護;
5、一機多用:可同時加工多種粒徑的物料。
可適用于各類糧食作物、油料作物、各種豆類的篩選、清理加工。
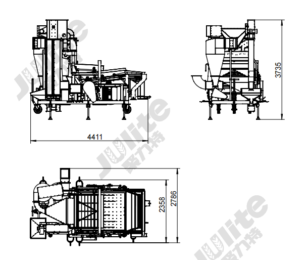
| 設備名稱 | 型號 | 篩面尺寸(mm) | 功率 (kw) | 生產率(t/h) | 整機重量(kg) | 外形尺寸 長x寬x高(mm) | ||
| 比重臺 | 前半篩 | 種子 | 商品糧 | |||||
| 風篩比重清選機 | 5XFZ-25SC | 1700x1600 | 1250x1200 | 12.1 | 10 | 10-15 | 2200 | 4411x2786x3735 |